

Med Vores Første Hybel får I et spritnyt længehus på 140 optimalt udnyttede kvadratmeter og med tre værelser. I får rig mulighed for at tilpasse udtrykket gennem materialevalg, ligesom planløsningen med få udvalgte tilvalg kan justeres til jeres behov.
Prisen?
Den er blot 2.340.000,- hvis du bygger i Jylland/ Fyn, og 2.675.000,- på Sjælland
– ekskl. fundering og grund.
En overskuelig investering i både hverdagen og fremtiden.
Ufatteligt meget for pengene
Har I også fået nok af kunstige ”fra-priser”? Med Vores Første Hybel får I alt det essentielle – samt det ekstra, der giver følelsen af luksus i hverdagen.
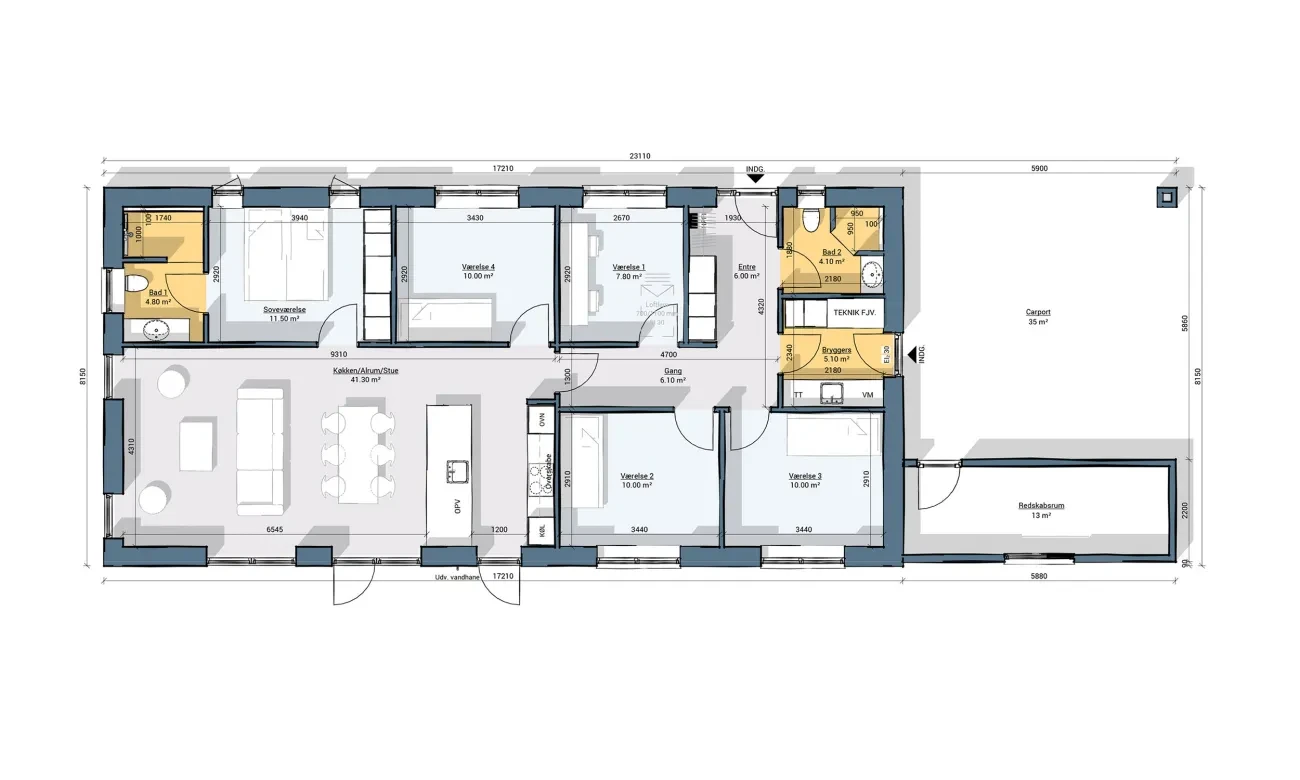
Optimeret planløsning
Få et længehus på 140 optimalt udnyttede kvadratmeter med tre gode værelser, depot, stort bryggers og garderobe.
Opmurede gavle
uden udhæng
Få saddeltag uden udhæng og opmurede gavle og zinktagrender.
Hverdagsluksus
med Quooker
Nyd at have kogende vand lige ved hånden med en Quooker.
Velvære på badeværelserne
Få væghængte toiletter med skjult cisterne på begge badeværelser samt rainshower og shampoohylder.
Tilpas udtrykket
til din stil
Vælg mellem fire forskellige gulve, klinker, mursten og inventarløsninger.
Dertil har vi også sørget for at huset bliver imprægneret.
Skrålofter med
ovenlys vindue
Skålofter fra entréen til køkken-alrum og et ovenlysvindue der bringer dagslys ind, og skaber en stemning af varme og velvære.
Hvorfor nøjes?
Med Vores Første Hybel har vi skruet ned for mængden af beslutninger og op for luksus, kvalitet og funktionalitet. Mindre bøvl, mere tid til alt det sjove med familien.
Og så har vi optimeret alt, fra planlægning til byggeproces, så I kan få jeres drømmehus til en fast, lav pris.

Download Kataloget
Vi har samlet alt det, I skal vide om Vores Første Hybel, i et overskueligt online-katalog. Udforsk plantegninger, materialer og specifikationer. I får også et afkrydsningsskema, som I kan medbringe til en snak med en af vores rådgivere.

Få overblikket
I får et hus med et moderne udtryk, sadeltag uden udhæng, og med de eftertragtede detaljer, vi hos Hybel er kendt for: Overmuring, skotrender i ét stykke, rainshower med shampohylder og væghængte toiletter uden skyllekant for et let udtryk og nem rengøring.
Garage eller Carport?
Udover grundplanen, kan I nemt tilvælge carport eller garage, så det passer til jeres behov. Du tilpasser nemt din planløsning her, hvor du også kan se placeringsmuligheder og priser.

Få luksus som standard

Ovenlys vindue
Skålofter fra entréen til køkken-alrum og et ovenlysvindue der bringer dagslys ind, og skaber en stemning af varme og velvære. Forestil dig at stå i dit køkken, mens solen strømmer ned fra oven, eller at nyde en bog i stuen med naturligt lys, der gør alt lidt mere behageligt, samtidig med at vinduer ventilere på varme dage.

Hårde hvidevarer-pakke
Aldrig gå ned på udstyr.I denne pakke har I alt
inkluderet inden for hårde hvidevarer til køkkenet. Vi sørger naturligvis også for, at alt bliver leveret og monteret, så det er klar, når I flytter ind. Vaskemaskine og tørretumbler til bryggerset er også inkluderet.

Stor elpakke
Strøm til både hjem og hverdag. Vi har gjort klar til en moderne hverdag med både komfort og frihed! som prikken over i’et har vi sat 20.000 kr. ekstra af til el, så du selv kan skrue op for funktionalitet og stemning, præcis som du ønsker. Dertil er der klargjort til el-lader – perfekt, hvis du allerede kører elbil - eller drømmer om det.
Kvalitetsmaterialer - uden meromkostninger
Vælg netop de materialer, der passer til jeres smag, og giver det udtryk, I drømmer om. Vi har givet jer fire valg med fire muligheder – helt enkelt.
Bemærk: Billederne er udelukkende til illustration af de forskellige materialer og afspejler ikke husets planløsning/indretning.
Gulv
Mursten
Klinker
Køkken
Book et uforpligtende møde
Er du nysgerrig på dine muligheder med Vores Første Hybel?
Tag det første skridt mod drømmeboligen. Book et uforpligtende møde med en af vores rådgivere, og hør mere om, hvordan vi kan hjælpe jer med at realisere jeres boligdrømme.

FAQs
Få svar på ofte stillede spørgsmål om Vores Første Hybel her. Bliv blandt andet klogere på mulighederne for tilbygning og garage, fordelene ved at bygge nyt frem for at købe et ældre hus – og find ud af, hvordan Vores Første Hybel adskiller sig fra andre måder at bygge nyt på!
Mange parkerer drømmen om et nybygget hus. Enten på grund af økonomien, eller fordi processen kan virke uoverskuelig. Det gælder især førstegangskøbere – og det, synes vi, er en skam!
Baseret på vores kendskab til familiers behov har vi truffet de fleste beslutninger, som kan kræve mange og lange overvejelser. Ved at lægge hustype og planløsning fast fra start – samt lade jer vælge mellem de mest populære materialer – har vi tilmed kunnet presse prisen helt i bund.
Vores Første Hybel er en overskuelig investering i både hverdagen og fremtiden. I får kvalitet fra inderst til yderst. I får et hjem med maser af plads til familien. I får det hele – helt enkelt!
Det er ikke muligt at lave individuelle ændringer på planløsningen, men vi har valgt et længehus, hvor kvadratmeterne er optimalt udnyttet – og så har vi skabt tre varianter af huset, så det passer til netop jeres ønsker.
Huset kan spejlvendes, så I kan vælge værelsernes placering. Dertil kan I nemt vælge carport eller garage - og garagen kan både placeres i forlængelse eller i vinkel af huset. Planløsningen giver også plads til at udvide huset senere – hvis nu behovet skulle opstå senere.
Ønsker I at investere i et optimalt indrettet hjem, som I kan vokse i over årene? Så er Vores Første Hybel den rette løsning for jer. I slipper for uoverskuelige valgmuligheder og dyre tilvalg – for alle de bedste tilvalg er allerede inkluderet i prisen.
Vores mål er at give jer alt det nødvendige – og så dét ekstra luksus, der bringer smilet frem hver eneste dag. Vi har tænkt i langsigtede løsninger og bygger i kvalitetsmaterialer fra inderst til yderst. Samtidig er der gode muligheder for at bygge til, hvis jeres behov ændrer sig i fremtiden. Så selvom vi kalder det Vores Første Hybel, får I her rammerne til mange års skønt familieliv.
Der følger mange fordele med at flytte ind i et nybygget hus. I mange tilfælde møder man ingen problemer ved at købe et eksisterende hus. Det er dog ikke usandsynligt, at der dukker forudsete udfordringer – og udgifter – op. Køber man et ældre hus, vil man typisk også have højere omkostninger til både energi og løbende vedligeholdelse.


.avif)





























