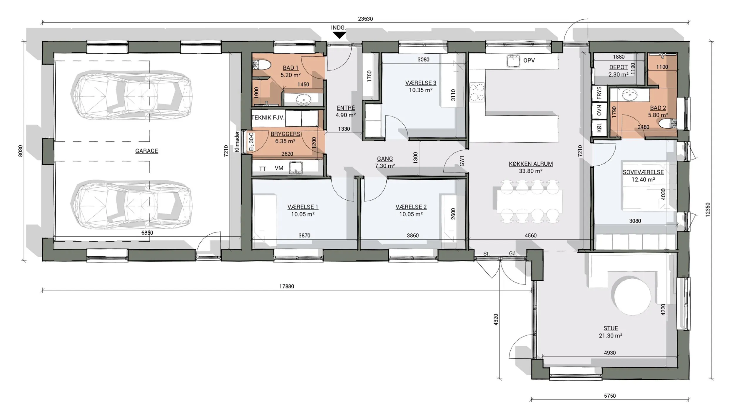
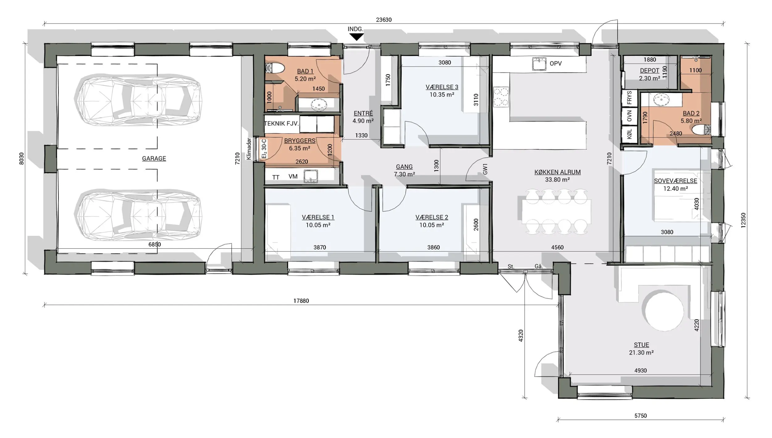
Galleri 106
Vinkelhus med valmtag med udhæng.
Mursten: Moskus. Klinker: Essay Antracit. Gulv: Laminat 82
Siddebænk, skjult depot og skabsvæg i soveværelset
Bolig: 156 m2. Garage: 58 m2.
Andre gallerier
Galleri 194
Vinkelhus med smarte løsninger og plads til hele familien
Mursten: EW2403 Gråklit Klinker: Kermos projekt lysegrå Gulv: Hybel 69 - Timberman Nebraska Oak
Lameller i carport, tegltag, stort køkken, lang siddebænk i køkken/alrum, veludnyttet bryggers, skjult walk-in & indbyggede skabe på værelser
Bolig: 183 m2 Carport: 64 m2
Se vores katalog og drøm videre hjemme på sofaen
Det er nemt, hurtigt og kun et klik væk. Hent kataloget herunder og lad rejsen begynde.
.avif)


































































