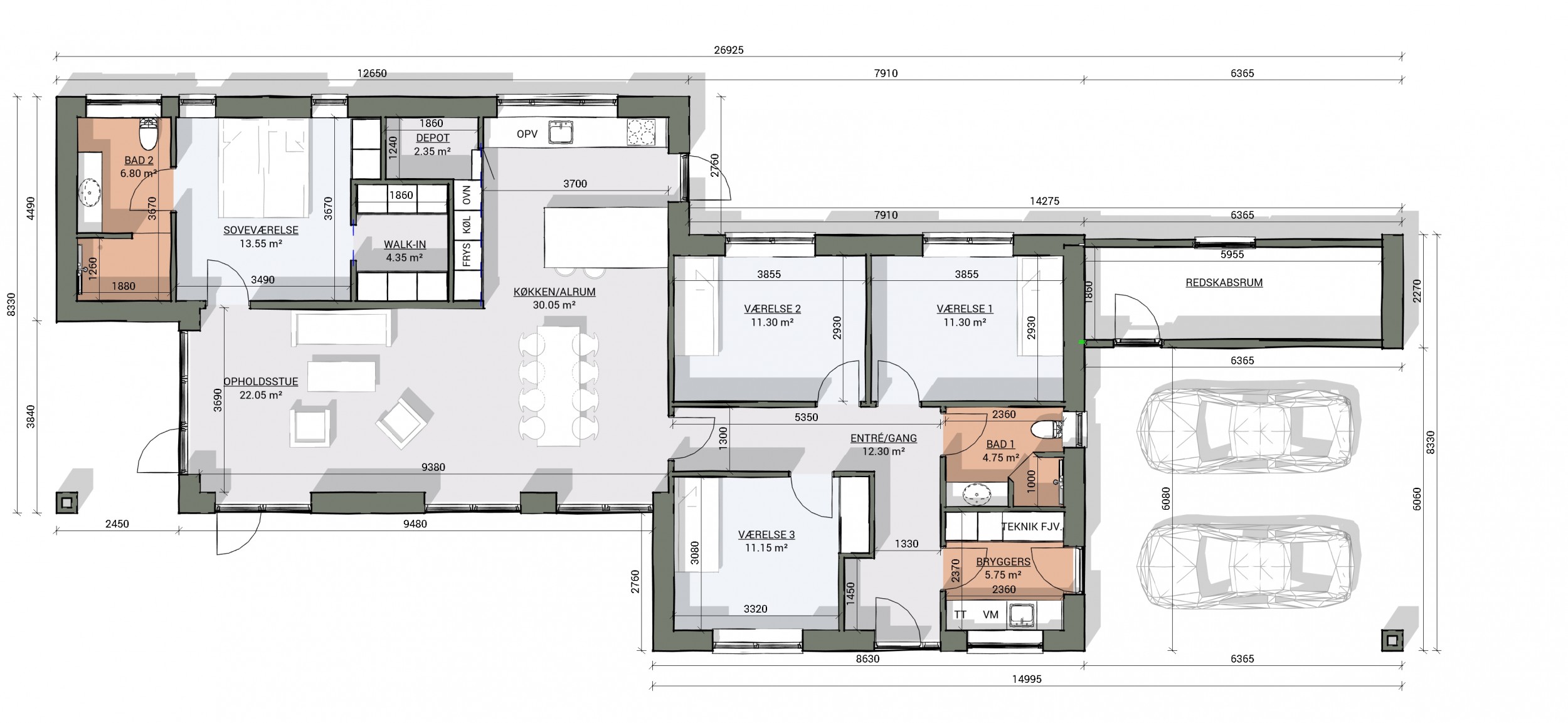
Galleri 11
Forskudt længehus med saddeltag udne udhæng.
Mursten: Corona. Klinker: Center Urban Grey. Gulv: Hybel 65.
Troldtekt lofter, skråloft og vindueskarme med murede rulleskifte.
Bolig: 164 m2. Carport: 53 m2.
Andre gallerier
Galleri 197
Stilrent design med overraskende detaljer igennem huset
Mursten: EW2424 Mocca Nova Klinker: Marazzi Freistil Ivory Gulv: Hybel 420 - Wallman Organic Silent 354 White Oak
Forskudt vinkelhus med flere kroge, nedtrapninger, garage, stålbordplade med bordemfang og badeværelse med særligt vindue.
Bolig: 171 m2 Garage: 55 m2
Galleri 196
Smart og funktionelt hjem med gennemtænkte løsninger
Mursten: EW2546 Taurus Klinker: Marazzi Freistil Sand Gulv: Hybel 90 - Timberman Cayman Oak
Vinkelhus med minimum af spildplads, skabsvæg i soveværelse, gulvtæppe, køkken/alrum og stue i åben forbindelse, garage & værelser med indbygget skrivebord og skab
Bolig: 162 m2 Garage: 58 m2
Se vores katalog og drøm videre hjemme på sofaen
Det er nemt, hurtigt og kun et klik væk. Hent kataloget herunder og lad rejsen begynde.
.avif)













































