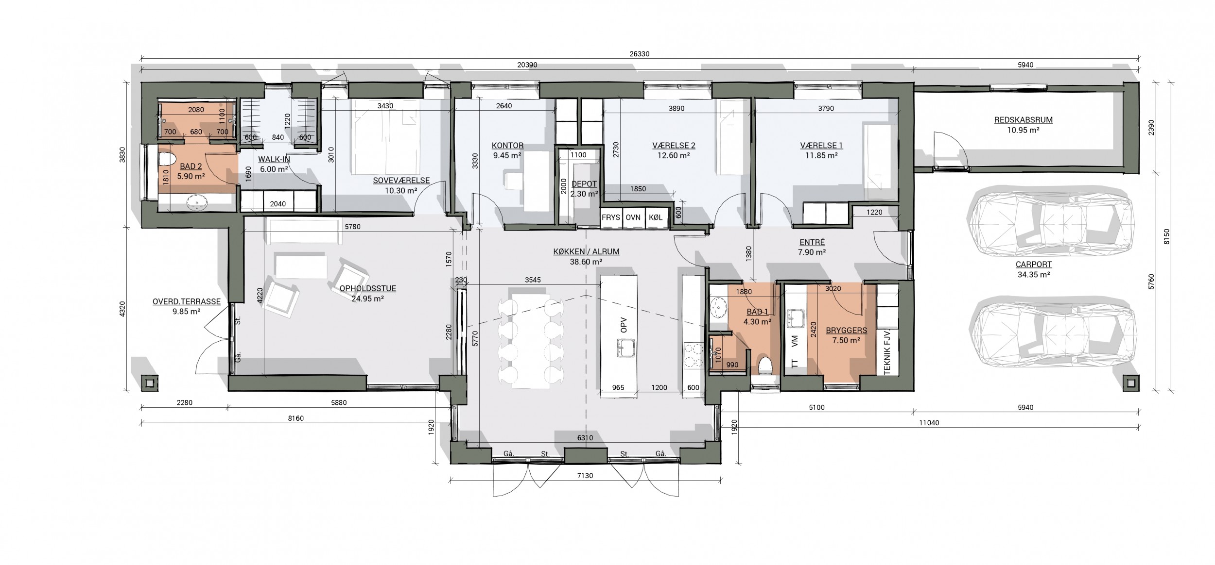
Galleri 16
Forskudt vinkelhus med saddeltag uden udhæng.
Mursten: Laika med gråhvid fuge. Klinker: Raw Beton, lys grå 60*60. Gulv: Hybel 78.
Badeværelse med dobbeltbrus, walk-in, køkken/alrum med højt til loftet og store glaspartier, murstensvæg som rumdeler og indbyggede skabe.
Bolig: 170 m2. Carport: 48 m2.
Andre gallerier
Galleri 194
Vinkelhus med smarte løsninger og plads til hele familien
Mursten: EW2403 Gråklit Klinker: Kermos projekt lysegrå Gulv: Hybel 69 - Timberman Nebraska Oak
Lameller i carport, tegltag, stort køkken, lang siddebænk i køkken/alrum, veludnyttet bryggers, skjult walk-in & indbyggede skabe på værelser
Bolig: 183 m2 Carport: 64 m2
Se vores katalog og drøm videre hjemme på sofaen
Det er nemt, hurtigt og kun et klik væk. Hent kataloget herunder og lad rejsen begynde.
.avif)









































































