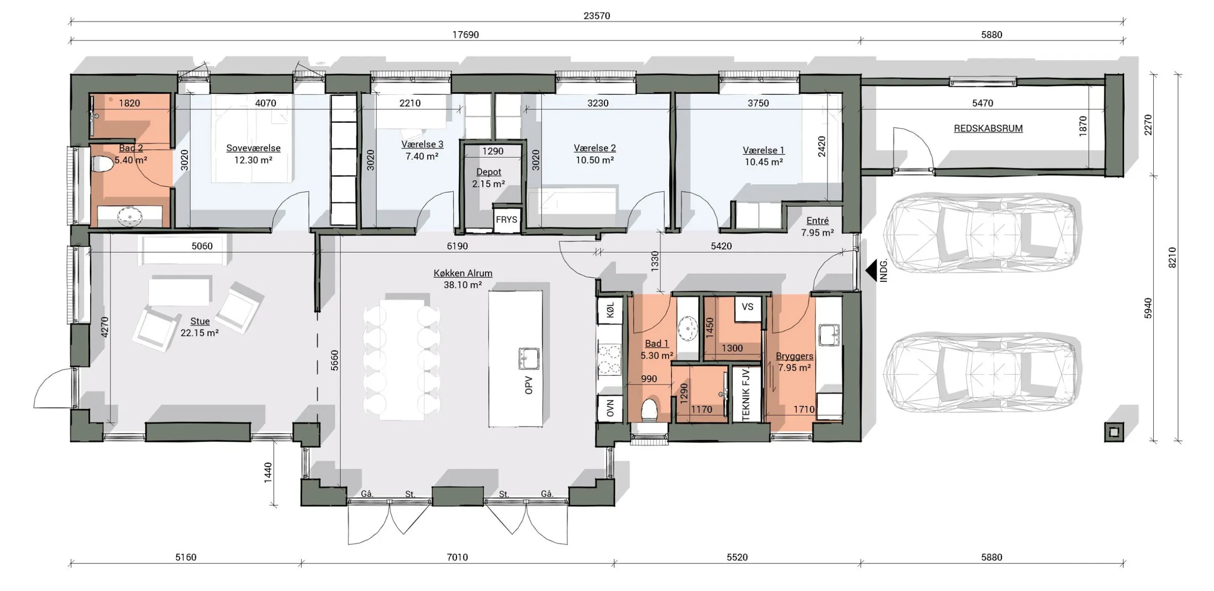
Galleri 164
Forskudt vinkelhus med veludnyttet planløsning
Mursten: Egernsund Wienerberger EW0451 Stål, Grå med mørke nuancer Klinker: Projeck Grey Gulv: Hybel 88.
Fire gode værelser, et dejligt køkken-alrum og et praktisk bryggers.
Bolig: 155 m2 Carport: 48 m2
Andre gallerier
Galleri 213
Gennemtænkt og luksuriøs villa bygget til de gode minder
Mursten: EW3580 Bronsgroen Klinker: Cerim Rock Danish Smoke Gulv: Hybel 32 - plankegulve
Arkitekttegnet funkishus med jordvarme, gennemført planløsning, køkken/alrum med vinrum, reces, Luksus på badeværelserne, overdækket terrasse på 46 m²
Bolig: 210 m2 Garage 58 m2
Galleri 214
Et hjem bygget til at hver kvadrameter er udnyttet
Mursten: RT 545 Unika Atlas Klinker: Pamesa Slate Way Ash MAT Gulv: Hybel 97
Ensidig tagkonstruktion med mere bolig og mindre gang, indbygget reol i stuen, teknikrum med tørreplads, new Yorker-væg til kontor & store vinduespartier
Bolig: 183 m2 Carport: 50 m2
Se vores katalog og drøm videre hjemme på sofaen
Det er nemt, hurtigt og kun et klik væk. Hent kataloget herunder og lad rejsen begynde.
.avif)


























