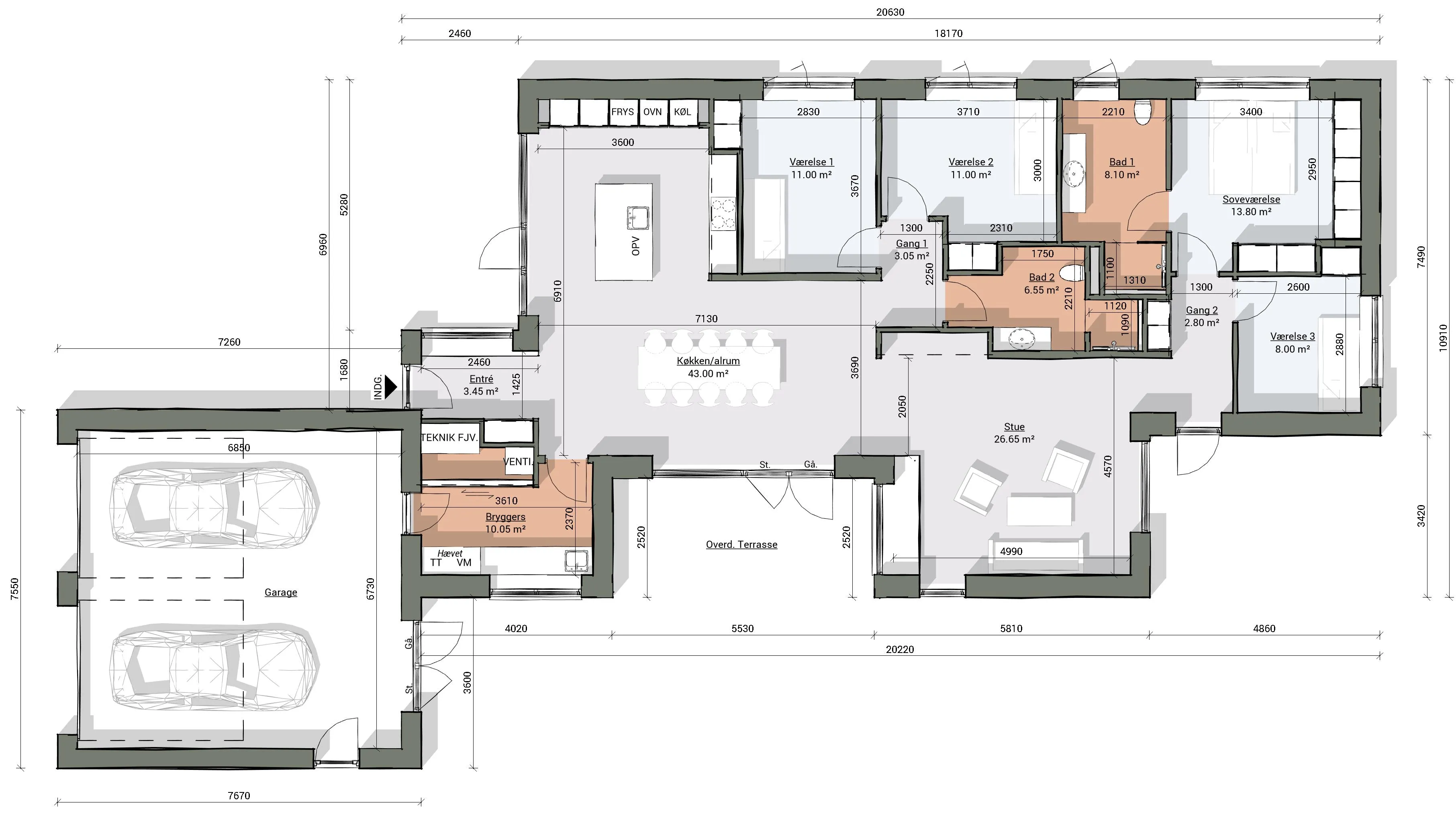
Galleri 174
Familievenlig villa med ensidig taghældning og dobbeltdøre ud mod terrassen i garagen
Mursten: Egernsund - B547 - Libra Klinker: Freistil Ivory Gulv: Hybel 300 - Brighton
Dobbelt garage, lyst gennemgående køkken/alrum og stue, lækker forældreafdeling
Bolig: 181 m2 Garage: 56 m2
Andre gallerier
Galleri 194
Vinkelhus med smarte løsninger og plads til hele familien
Mursten: EW2403 Gråklit Klinker: Kermos projekt lysegrå Gulv: Hybel 69 - Timberman Nebraska Oak
Lameller i carport, tegltag, stort køkken, lang siddebænk i køkken/alrum, veludnyttet bryggers, skjult walk-in & indbyggede skabe på værelser
Bolig: 183 m2 Carport: 64 m2
Se vores katalog og drøm videre hjemme på sofaen
Det er nemt, hurtigt og kun et klik væk. Hent kataloget herunder og lad rejsen begynde.
.avif)


























































































