Galleri 177
Nytænkt vinkelhus med gennemtænkte detaljer
Mursten: Strøjer B422 - Mocca Nova Klinker: Marazzi Matter Grey Gulv: Hybel 69 - Nebraska Oak
Voksenafdeling med et overgangsværelse fra små børn til større børn, ovenlys vinduer i køkken-alrummet, dobbelt garage og praktisk bryggers
Bolig: 177 m2 Garage: 57 m2
Andre gallerier
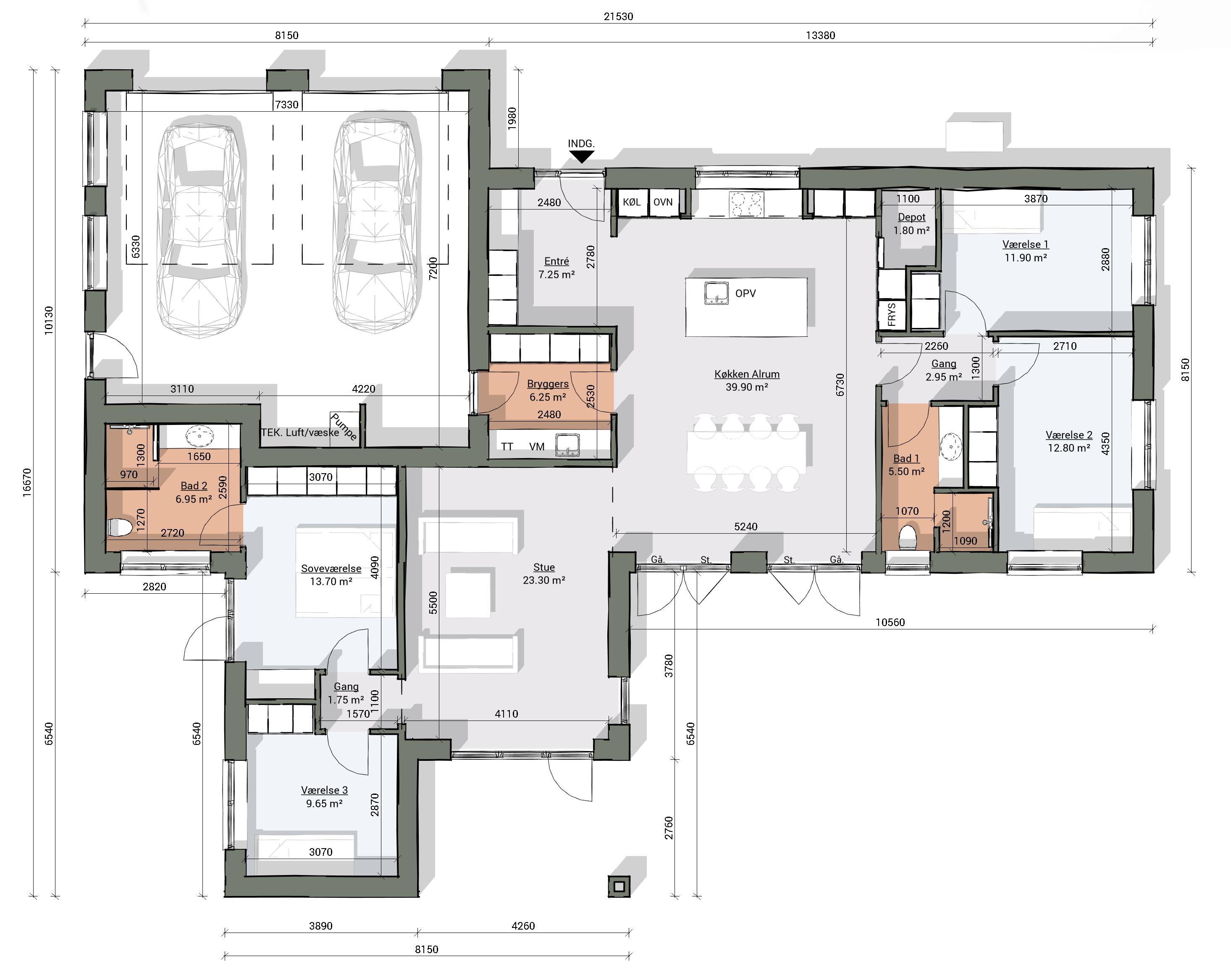
Galleri 194
Vinkelhus med smarte løsninger og plads til hele familien
Mursten: EW2403 Gråklit Klinker: Kermos projekt lysegrå Gulv: Hybel 69 - Timberman Nebraska Oak
Lameller i carport, tegltag, stort køkken, lang siddebænk i køkken/alrum, veludnyttet bryggers, skjult walk-in & indbyggede skabe på værelser
Bolig: 183 m2 Carport: 64 m2
Se vores katalog og drøm videre hjemme på sofaen
Det er nemt, hurtigt og kun et klik væk. Hent kataloget herunder og lad rejsen begynde.
.avif)




























































