Galleri 28
Forskudt vinkelhus med saddeltag uden udhæng.
Mursten: Taurus. Klinker: Raw City Anthracite. Gulv: Hybel 66
Skråloft, akustikplader og dobbelte terrassedøre.
Bolig: 176 m2. Carport: 54 m2.
Andre gallerier
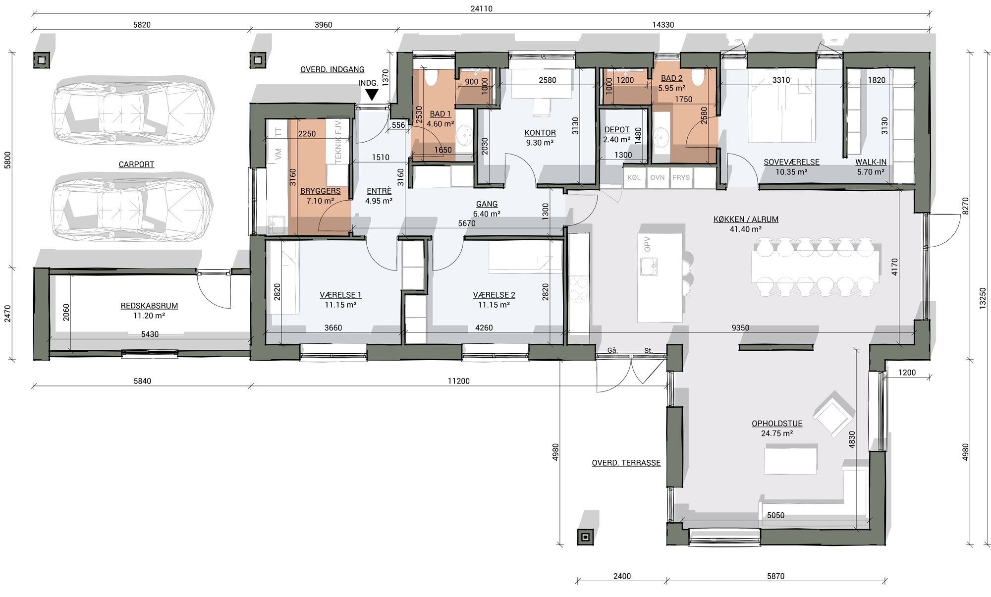
Galleri 194
Vinkelhus med smarte løsninger og plads til hele familien
Mursten: EW2403 Gråklit Klinker: Kermos projekt lysegrå Gulv: Hybel 69 - Timberman Nebraska Oak
Lameller i carport, tegltag, stort køkken, lang siddebænk i køkken/alrum, veludnyttet bryggers, skjult walk-in & indbyggede skabe på værelser
Bolig: 183 m2 Carport: 64 m2
Se vores katalog og drøm videre hjemme på sofaen
Det er nemt, hurtigt og kun et klik væk. Hent kataloget herunder og lad rejsen begynde.
.avif)









































































