Udvalgte billeder
med kategorien
'
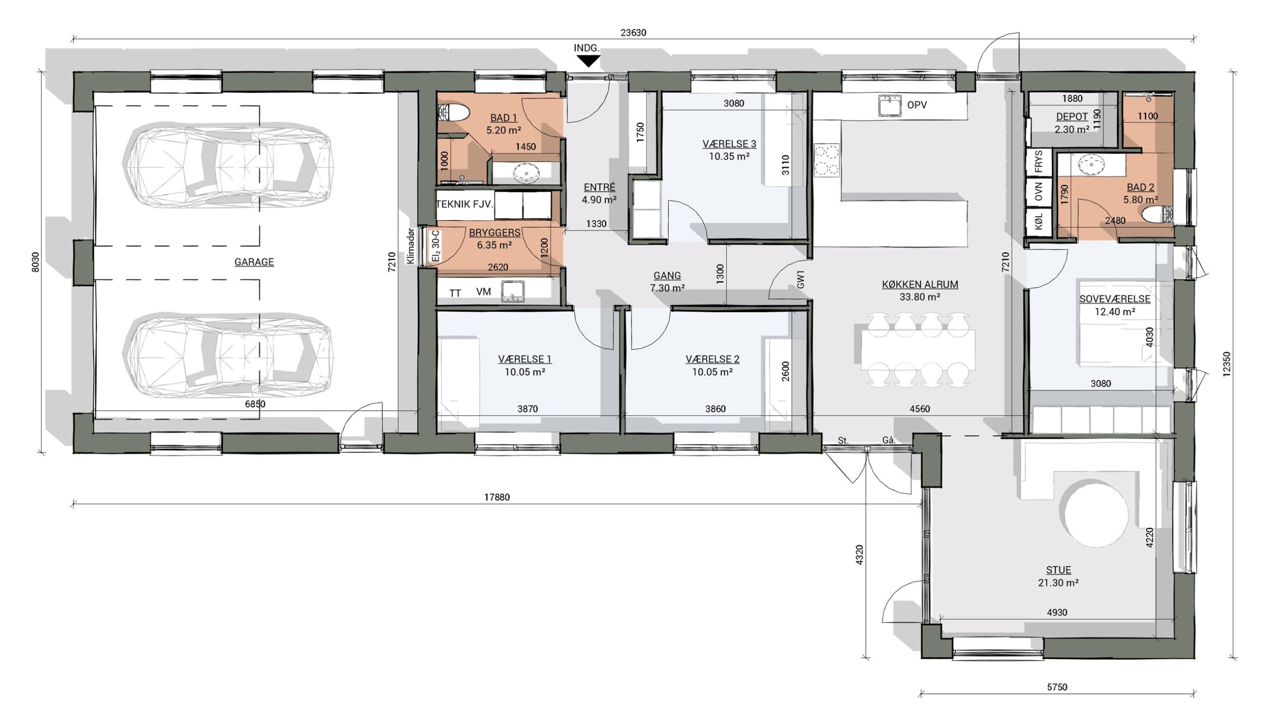
Plantegning
'
Vi tager forbehold for fejl i den skrevne information.
Andre gallerier
Se vores katalog og drøm videre hjemme på sofaen
Det er nemt, hurtigt og kun et klik væk. Hent kataloget herunder og lad rejsen begynde.
.avif)








