.webp)
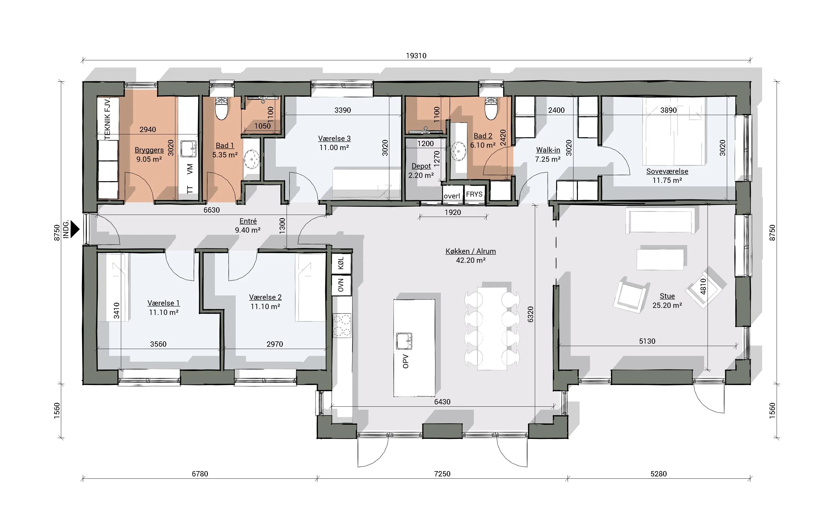
Priseksempler på nybyg med Hybel
Nybyg kan være lidt af en jungle - bare ikke når du bygger med Hybel. Vi vil nemlig gerne gøre det så gennemskueligt og ligetil som muligt for dig, og derfor kan du her se eksempler på nogle dejlige hybler, samt hvad der er med i prisen. Disse er selvfølgelig kun eksempler, og hvis du ønsker at få tegnet en anden planløsning eller vælge andre materialer, er det også muligt uden ekstra omkostninger.
Hvad er inkluderet i prisen?
Når du skal bygge nyt, er der mange ting, du skal tage stilling til, og det kan være svært at vurdere, hvad den samlede pris på dit nye hus kommer til at ligge på. I alle vores priseksempler har vi defineret bestemte ting, der altid er med i prisen, og en fællesnævner er, at vi er med dig hele vejen fra start til slut. I Hybel får du nemlig en partner, du kan stole på - selv når markedet ændrer sig, eller det hele er lidt usikkert. Vi springer ikke fra vores aftaler, men står inde for entreprisesummen under hele byggeriet, uanset hvad der sker i verden omkring os - det kan du være helt sikker på. Alle prisstigninger tager Hybel på sin egen kappe, så du ikke behøver at have nogen bekymringer for din økonomi eller pludselige ændringer i prisen. Derudover sørger vi selvfølgelig for at tilpasse huset til netop din byggegrund og dine ønsker, så vi kan realisere lige præcis din husdrøm. I forhold til plantegning, materialer og inventar er dette noget, vi i fællesskab finder en god løsning på.
Hvad med selve byggeriet?
Én ting er helt sikker - når du bygger med Hybel, kan du føle dig tryg hele vejen fra start til slut. Derfor holder vi altid et opstartsmøde med din faste byggeleder, og du får nøgle og adgang til dit hus under hele byggeriet. På den måde kan du hele tiden kan følge med i, hvor langt vi er kommet og få en status på byggeprocessen. Derudover er alt lige fra forbrug af strøm i byggeperioden, entrepriseforsikring, oprydning og bortskaffelse af byggeaffald og stikledninger til radonsikring af bygning, jordbundsprøver, energiberegning og 1-års gennemgang ved Hybels servicefolk også med i prisen. Hvad der mere specifikt er med i prisen for selve byggeriet, kan du blive klogre på under de forskellige eksempler.
Fordele ved Hybel
Hybel er et af Danmarks yngste byggefirmaer, men det er vi slet ikke kede af. Vi er nemlig samtidig et af de mest erfarne, og siden 2016 har vi været med til at realisere boligdrømme over hele landet. Og fordi vi tegner, beregner og bygger nye hjem fra bunden - hver gang - har vi aldrig bygget to huse, der er ens. Så de viste huse er blot eksempler, og mulighederne er nærmest uendelige - og du må hellere end gerne vælte vores vægge, hvis de står i vejen for dine drømme. Fordelene ved at bygge med Hybel er altså mange, men vigtigst af alt - hos Hybel er en aftale en aftale, og sådan vil det altid være. Det vil sige, at når du bygger med os, ændrer vi ikke din entreprisesum, når kontrakten først er underskrevet, og der kommer heller ingen pludselige ekstraomkostninger på grund af prisstigninger. Derudover betaler du først, når du får nøglerne til dit færdige hus. Med erfarne medarbejdere, et solidt økonomisk fundament og uden urealistiske fra-priser, er vi det sikre valg, når boligdrømmen skal gøres til virkelighed.
Læs mere om dine fordele ved at bygge nyt hus med hybel her.
Se vores katalog og drøm videre hjemme på sofaen
Det er nemt, hurtigt og kun et klik væk. Hent kataloget herunder og lad rejsen begynde.
.avif)






